Vyberte jednotku

Přehled ploch
k pronájmu

Vinohradská 8 – budova 4 nájemci

689,4 m2

Vinohradská 8 – budova 2 nájemci

682,8 m2

Vinohradská 8 – budova 2 nájemci

1 054,0 m2

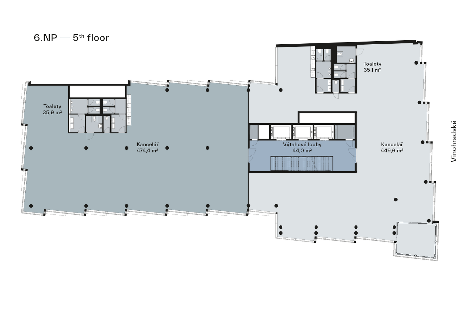
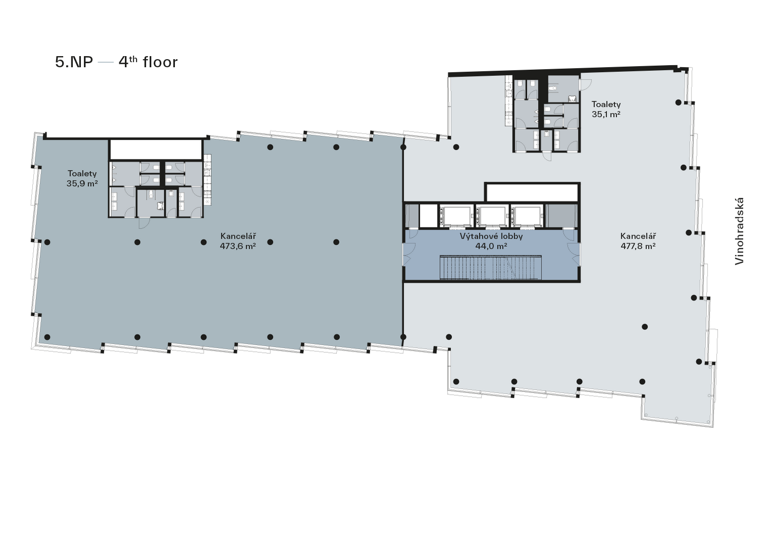
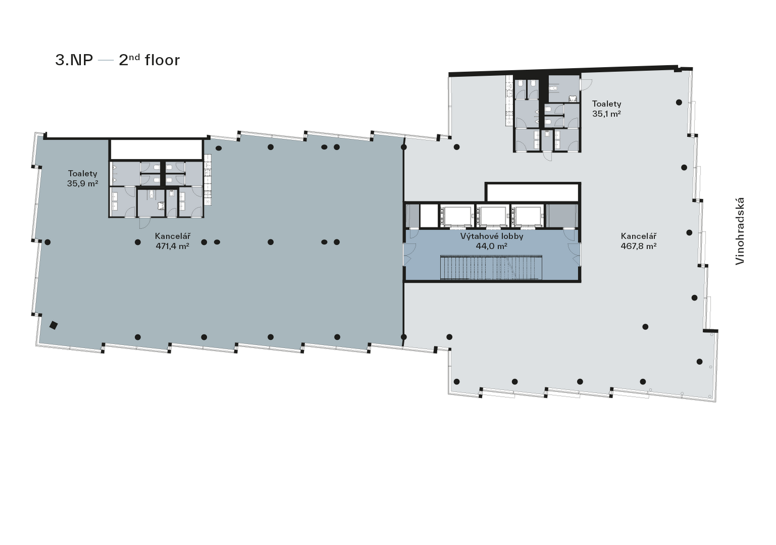
Vinohradská 8 – budova 2 nájemci

1 025,1 m2

Vinohradská 8 – budova 2 nájemci

1 066,2 m2

Vinohradská 8 – budova 2 nájemci

1 039,0 m2

Vinohradská 8 – budova 2 nájemci

1 062,4 m2

Vinohradská 8 – budova 2 nájemci

985,9 m2

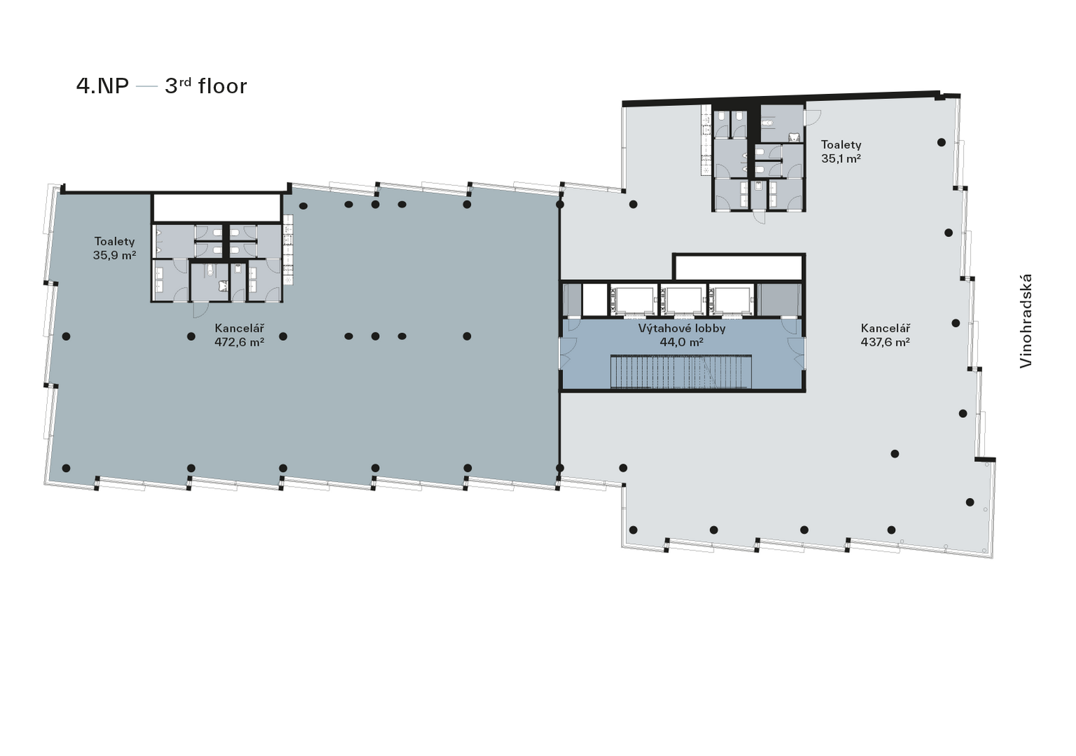
Vinohradská 8 – budova 1 nájemce

679,6 m2

Vinohradská 8 – budova 1 nájemce

357,8 m2

GASTRO Atrium / Římská (Duplex) 1 nájemce

501,3 m2

GASTRO – Pasáž Rubešova ul. 1 nájemce

241,9 m2

RETAIL – VIN 10 budova 1 nájemce

195,9 m2

RETAIL – VIN 10 budova 1 nájemce

223,1 m2

Vinohradská 8 - přehled pater

Obchodní prostory - uliční parter & vnitroblok

Poptávka

* Toto pole je povinné.